一戸建て
2025/12/07 更新
長久手市上川原 長谷川12番館
- 価格
- 13,200万円 (税込)
- 所在地
- 愛知県長久手市上川原
- 交通
- 東山線・藤が丘駅 2番口 徒歩16分
- 物件コード1:SMB34645
- 物件コード2:CM00621116
■オーナーチェンジ物件 ■15部屋中12部屋賃貸中
- 物件詳細
- 地図・周辺施設
- ローンシミュレーション
注目
■オーナーチェンジ物件 ■15部屋中12部屋賃貸中
【想定】
月額:金788.500円
年額:金9.462.000円
年間表面利回り:約7.16%
【現況】
月額:金638.500円
年額:金7.662.000円
年間表面利回り:約5.80%
物件概要
- 価格
- 13,200万円 (税込) ローンシミュレーション
- 物件種別
- 売買 マンション(一棟)
- 建物名称
- 長久手市上川原 長谷川12番館
- 所在地
- 愛知県長久手市上川原
- 交通
- 東山線・藤が丘駅 2番口 徒歩16分
リニモ・藤が丘駅 1(リニモ)口 徒歩16分
リニモ・はなみずき通駅 徒歩18分
- 築年月
- 2000年01月
- 現況
- 賃貸中
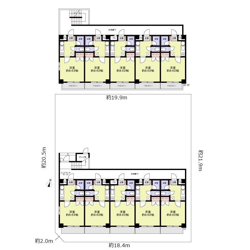
- 建物面積
- 388.5m²
- 間取り
- -
- 専有面積(最小)
- 25m²
- 専有面積(最大)
- 25m²
- 建物構造
- RC(鉄筋コンクリート)
- 所在階/階数
- 3階建
- 駐車場
- 有5,500円(税込)
- 空き物件数/総戸数
- -/15戸
- 接道状況
- 角地(西 6m 公道 間口22m)(南 4m 公道 間口18m)
- 土地面積
- 435.42m²(公簿)
- 土地権利
- 所有権
- セットバック
- 無
- 私道負担
- 無
- 都市計画
- 市街化区域
- 地目
- 宅地
- 用途地域
- 第一種住居地域
- 地勢
- 建ぺい率/容積率
- 60% / 200%
- 国土法届出
- 不要(否)
- 引渡 注1
- 相談
- 取引態様
- 媒介
- 備考
- 【想定】
月額:金788.500円
年額:金9.462.000円
年間表面利回り:約7.16%
【現況】
月額:金638.500円
年額:金7.662.000円
年間表面利回り:約5.80%
1K×15戸
25.00平米×15戸
- 次回更新日
- ※次回更新は、 2025年12月14日 を予定しております。
- 引渡欄に「即時」と表示の物件は、残代金の支払いが完了次第、引渡が可能となります。
電話でのお問い合わせはこちら
お電話の際は、「すみなびを見た」とお伝え頂けるとスムーズです。
0120-78-4063
(受付時間) 10:00 ~ 18:00 (定休日) 毎週火曜日・水曜日
住友林業ホームサービス株式会社 名古屋支店
- 所在地
- 〒460-0008愛知県名古屋市中区栄2丁目3-1 名古屋広小路ビルヂング1階
- 電話番号
- 0120-78-4063
- 免許番号
- 国土交通大臣(16)第220号
- 定休日
- 毎週火曜日・水曜日
- 不動産は成約済あるいは販売中止・価格変更となる場合もあります。
不動産の販売状況は、上記店舗へお問い合わせください。
- 不動産協会会員・(一社)不動産流通経営協会会員・(公社)首都圏不動産公正取引協議会加盟









