一戸建て
2025/12/07 更新
愛知郡東郷町和合ケ丘1丁目中古戸建
- 価格
- 3,780万円 (非課税)
- 所在地
- 愛知県愛知郡東郷町和合ケ丘1丁目
- 交通
- 豊田線・日進駅 出入口2 徒歩15分
- 物件コード1:SMB37604
- 物件コード2:BH00621289
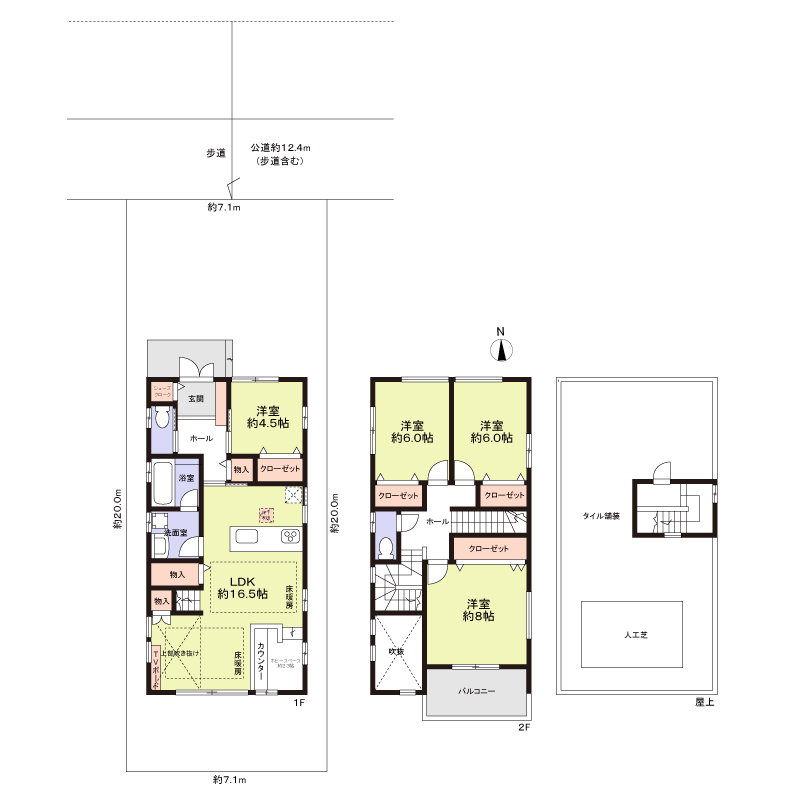
■4LDK+ホビースペース(約2.3帖) ■LDに床暖房
- 物件詳細
- 地図・周辺施設
- ローンシミュレーション
注目
■屋上庭園(人工芝)のある中古戸建
■2016年7月築 クレストンホーム施工住宅
■4LDK+ホビースペース
■LDに床暖房
ご内覧のお問合せお待ちしております。
物件概要
- 価格
- 3,780万円 (非課税) ローンシミュレーション
- 物件種別
- 売買 中古戸建
- 建物名称
- 愛知郡東郷町和合ケ丘1丁目中古戸建
- 所在地
- 愛知県愛知郡東郷町和合ケ丘1丁目
- 交通
- 豊田線・日進駅 出入口2 徒歩15分
- 築年月
- 2016年07月
- 現況
- 居住中
- 建物面積
- 110.96m²
- 間取り
- 4LDK
- 建物構造
- 木造
- 階数
- 2階建
- 駐車場
- 有
- 空き物件数/総戸数
- -
- 接道状況
- 一方(北 12.4m 公道 間口7.1m)
- 土地面積
- 143.83m²(公簿)
- 土地権利
- 所有権
- セットバック
- 無
- 私道負担
- 無
- 都市計画
- 市街化区域
- 地目
- 宅地
- 用途地域
- 第一種住居地域
- 地勢
- 建ぺい率/容積率
- 60% / 200%
- 国土法届出
- 不要(否)
- 引渡 注1
- 相談
- 取引態様
- 媒介
- 設備・条件
- 室内洗濯機置場、バルコニー有、追い焚き、システムキッチン、2階以上、フローリング、床暖房、モニタ付インターホン、温水洗浄便座、カウンターキッチン、食器洗浄乾燥機、ペアガラス、駐車場2台有
- 備考
- ■2016年7月築 クレストンホーム施工住宅
■4LDK+ホビースペース(約2.3帖)
■LDに床暖房
■ユニットバス1616サイズ
■浴室乾燥機、食器洗浄乾燥機あり
■駐車スペース2台可(車種による)
■屋上庭園(人工芝)
■名鉄豊田線「日進」駅徒歩約15分
■高嶺小学校まで約761m、東郷中学校まで約1984m
法令上の制限:特定都市河川浸水被害対策法、宅地造成及び特定盛土等規制区域
- 次回更新日
- ※次回更新は、 2025年12月14日 を予定しております。
- 引渡欄に「即時」と表示の物件は、残代金の支払いが完了次第、引渡が可能となります。
電話でのお問い合わせはこちら
お電話の際は、「すみなびを見た」とお伝え頂けるとスムーズです。
0120-70-4063
(受付時間) 10:00 ~ 18:00 (定休日) 毎週火曜日・水曜日
住友林業ホームサービス株式会社 平針店
- 所在地
- 〒468-0011愛知県名古屋市天白区平針3丁目708番地
- 電話番号
- 0120-70-4063
- 免許番号
- 国土交通大臣(16)第220号
- 定休日
- 毎週火曜日・水曜日
- 不動産は成約済あるいは販売中止・価格変更となる場合もあります。
不動産の販売状況は、上記店舗へお問い合わせください。
- 不動産協会会員・(一社)不動産流通経営協会会員・(公社)首都圏不動産公正取引協議会加盟





















