一戸建て
2025/12/07 更新
名古屋市中村区森末町2丁目中古戸建
- 即日案内
- 価格
- 4,490万円 (非課税)
- 所在地
- 愛知県名古屋市中村区森末町2丁目
- 交通
- 東山線・中村日赤駅 1番口 徒歩6分
- 物件コード1:SMB38169
- 物件コード2:BH00622256
■Panasonic Homes施工の家 ■全館空調 ■玄関土間 ■EVコンセント有 ■南側庭
- 物件詳細
- 地図・周辺施設
- ローンシミュレーション
即日案内会
ご案内の流れについて
まずはお問い合わせください。そのうえで内覧のご希望日時をご指定ください。
日時調整致します。その際にご要望いただければ周辺施設もご案内させていただきます。
ご案内は、現地や最寄り駅での待ち合わせや店舗までご来店など、ご希望に合わせて対応致します。
ご相談に要するお時間は内覧(10分~30分)、その後希望条件のご相談など(30~60分)、資金計画や住宅ローンご相談(10~30分)となります。
物件概要
- 価格
- 4,490万円 (非課税) ローンシミュレーション
- 物件種別
- 売買 中古戸建
- 建物名称
- 名古屋市中村区森末町2丁目中古戸建
- 所在地
- 愛知県名古屋市中村区森末町2丁目
- 交通
- 東山線・中村日赤駅 1番口 徒歩6分
東山線・本陣駅 4番口 徒歩8分
東山線・中村公園駅 4番口 徒歩15分
- 築年月
- 2018年03月
- 現況
- 空家
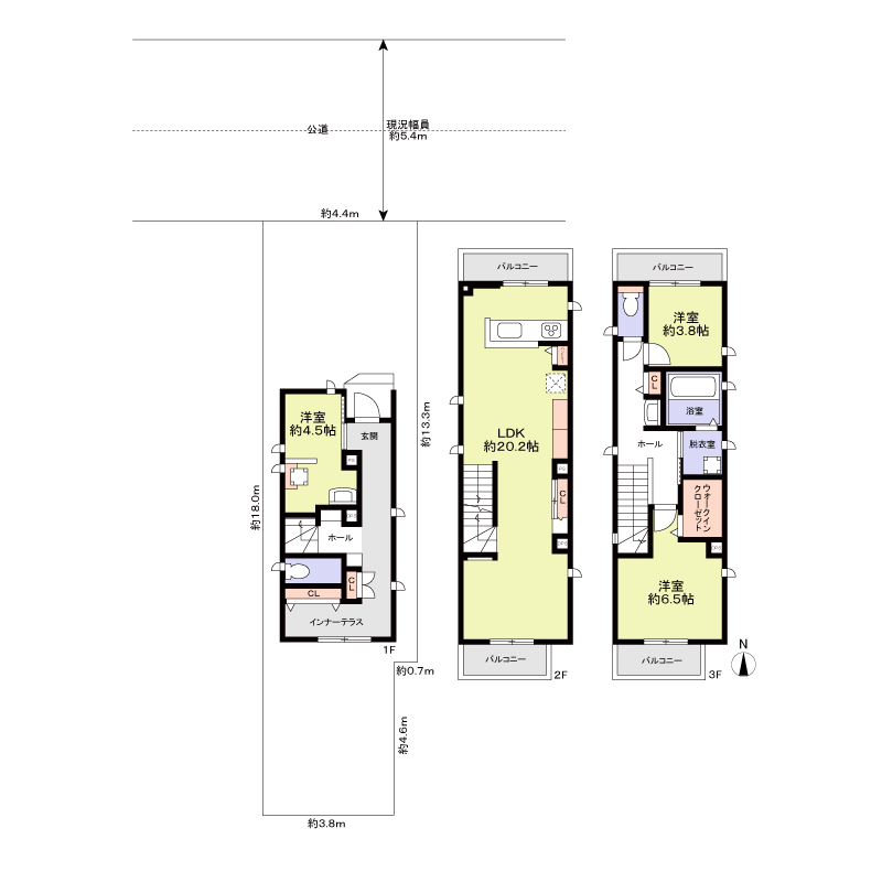
- 建物面積
- 98.31m²
- 間取り
- 3LDK
- 建物構造
- 軽量鉄骨
- 階数
- 3階建
- 駐車場
- 有
- 空き物件数/総戸数
- -
- 接道状況
- 一方(北 5.4m 公道 間口4.4m)
- 土地面積
- 83.04m²(公簿)
- 土地権利
- 所有権
- セットバック
- 無
- 私道負担
- 無
- 都市計画
- 市街化区域
- 地目
- 宅地
- 用途地域
- 第一種住居地域
- 地勢
- 建ぺい率/容積率
- 60% / 200%
- 国土法届出
- 不要(否)
- 引渡 注1
- 相談
- 取引態様
- 媒介
- 建築確認番号
- -
- 施工会社
- Panasonic Homes
- 備考
- ■浴室乾燥機 ■階段スロープ付 ■マイクロバブルバスユニット ■1階洋室(4.5帖)
法令上の制限:緑化地域、都市機能誘導区域内
- 次回更新日
- ※次回更新は、 2025年12月14日 を予定しております。
- 引渡欄に「即時」と表示の物件は、残代金の支払いが完了次第、引渡が可能となります。
電話でのお問い合わせはこちら
お電話の際は、「すみなびを見た」とお伝え頂けるとスムーズです。
0120-78-4063
(受付時間) 10:00 ~ 18:00 (定休日) 毎週火曜日・水曜日
住友林業ホームサービス株式会社 名古屋支店
- 所在地
- 〒460-0008愛知県名古屋市中区栄2丁目3-1 名古屋広小路ビルヂング1階
- 電話番号
- 0120-78-4063
- 免許番号
- 国土交通大臣(16)第220号
- 定休日
- 毎週火曜日・水曜日
- 不動産は成約済あるいは販売中止・価格変更となる場合もあります。
不動産の販売状況は、上記店舗へお問い合わせください。
- 不動産協会会員・(一社)不動産流通経営協会会員・(公社)首都圏不動産公正取引協議会加盟






















