一戸建て
2025/12/07 更新
名古屋市中村区野田町字二反畑中古戸建
- 即日案内
- 価格
- 2,380万円 (税込)
- 所在地
- 愛知県名古屋市中村区野田町字二反畑
- 交通
- 東山線・八田駅 1番口 徒歩10分
- 物件コード1:SMB38450
- 物件コード2:BH00622754
■南向き ■2025年11月リフォーム済(詳細備考) ■駐車場1台有(※車種による) ■3LDK
- 物件詳細
- 地図・周辺施設
- ローンシミュレーション
注目
2025年11月リフォーム済
〇外壁一部塗装
〇浴室ユニットバス交換
〇オープンキッチン新設
〇トイレ交換(1階、2階)
〇洗面化粧台交換
〇建具一部新調
〇全室クロス張替え
〇全室床張替え
〇ダウンライト設置
〇ハウスクリーニング ほか
即日案内会
少しでもご興味がございましたら、お早目のご内覧をおすすめします。
ご不明な点等がございましたら、お気軽にお問い合わせください。
物件概要
- 価格
- 2,380万円 (税込) ローンシミュレーション
- 物件種別
- 売買 中古戸建
- 建物名称
- 名古屋市中村区野田町字二反畑中古戸建
- 所在地
- 愛知県名古屋市中村区野田町字二反畑
- 交通
- 東山線・八田駅 1番口 徒歩10分
関西線・八田駅 北口 徒歩10分
名古屋線・近鉄八田駅 徒歩12分
- 築年月
- 1994年11月
- 現況
- 空家
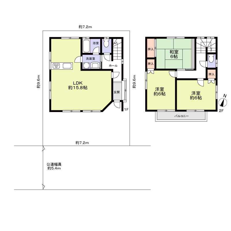
- 建物面積
- 82.63m²
- 間取り
- 3LDK
- 建物構造
- 木造
- 階数
- 2階建
- 駐車場
- 有
- 空き物件数/総戸数
- -
- 接道状況
- 一方(南 5.4m 公道 間口7.2m)
- 土地面積
- 70.17m²(公簿)
- 土地権利
- 所有権
- セットバック
- 無
- 私道負担
- 無
- 都市計画
- 市街化区域
- 地目
- 宅地
- 用途地域
- 準工業地域
- 地勢
- 建ぺい率/容積率
- 60% / 200%
- 国土法届出
- 不要(否)
- 引渡 注1
- 相談
- 取引態様
- 媒介
- リフォーム履歴
- 2025年11月 キッチン、浴室、トイレ、壁、床、全室、詳細備考参照、2025年11月、外壁
- 備考
- リフォーム詳細
〇外壁一部塗装
〇浴室ユニットバス交換
〇オープンキッチン新設
〇トイレ交換(1階、2階)
〇洗面化粧台交換
〇建具一部新調
〇全室クロス張替え
〇全室床張替え
〇ダウンライト設置
〇ハウスクリーニング ほか
法令上の制限:大規模集客施設制限地区、緑化地域、都市機能誘導区域内
- 次回更新日
- ※次回更新は、 2025年12月14日 を予定しております。
- 引渡欄に「即時」と表示の物件は、残代金の支払いが完了次第、引渡が可能となります。
電話でのお問い合わせはこちら
お電話の際は、「すみなびを見た」とお伝え頂けるとスムーズです。
0120-78-4063
(受付時間) 10:00 ~ 18:00 (定休日) 毎週火曜日・水曜日
住友林業ホームサービス株式会社 名古屋支店
- 所在地
- 〒460-0008愛知県名古屋市中区栄2丁目3-1 名古屋広小路ビルヂング1階
- 電話番号
- 0120-78-4063
- 免許番号
- 国土交通大臣(16)第220号
- 定休日
- 毎週火曜日・水曜日
- 不動産は成約済あるいは販売中止・価格変更となる場合もあります。
不動産の販売状況は、上記店舗へお問い合わせください。
- 不動産協会会員・(一社)不動産流通経営協会会員・(公社)首都圏不動産公正取引協議会加盟























