マンション
2025/12/09 更新
コスモポリス品川
- 価格
- 17,500万円 (非課税)
- 所在地
- 東京都港区港南3丁目
- 交通
- 山手線・品川駅 港南口(東口) 徒歩10分
- 物件コード1:SMB38759
- 物件コード2:BA00623431
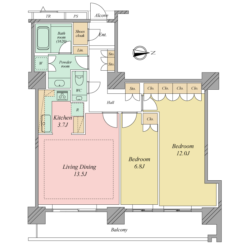
31階、東向き・レインボーブリッジビュー!85.82平米のワイドスパン2LDKタイプ!
- 物件詳細
- 地図・周辺施設
- ローンシミュレーション
注目
40階建、総戸数590戸、制震構造の大規模タワーレジデンス!2025年3月大規模修繕工事実施済み!
■85.82平米のワイドスパン2LDKタイプ、約12畳の居室
■シューズインクローク、トランクルーム有り
■折上天井・間接照明採用のリビングダイニングには床暖房を設置
■リビングダイニング・洋室天井高2,650mm(一部)
■作業スペースを確保したL字型システムキッチン、人造大理石仕様のカウンタートップ
(食器洗浄機、 ビルトイン浄水器、ディスポーザー、グリル、ビルトインオーブン付き)
■人造大理石カウンターの洗面化粧台、間接照明やワイドミラー採用
■入口の床段差や浴槽のまたぎを低くしたバリアフリー仕様のバスルーム、L型ワイドミラー
■手洗いボウル・カウンターや棚・収納などを確保したトイレ
■総戸数590戸、40階建、制震構造の大規模タワーレジデンス
■共用廊下はホテルライクな内廊下設計
■各階ごみステーション、24時間ごみ出し可能
■警備員24時間常駐、コンシェルジュサービス
■ペット飼育可(細則有り)
■2025年3月 大規模修繕工事実施済み
~共用施設(一部有料)~
B1階:フィットネスルーム、キッズルーム、クラブハウス
ビジネスラウンジ、ベンダー&ストックルーム
3階:ゲストルーム、ライブラリー
25階:シガールーム
40階:スカイラウンジ
物件概要
- 価格
- 17,500万円 (非課税) ローンシミュレーション
- 物件種別
- 売買 中古マンション
- 建物名称
- コスモポリス品川
- 所在地
- 東京都港区港南3丁目
- 交通
- 山手線・品川駅 港南口(東口) 徒歩10分
東海新幹線・品川駅 港南口(東口) 徒歩10分
京浜東北線・品川駅 港南口(東口) 徒歩10分
- 築年月
- 2005年02月
- 現況
- 居住中
- 専有面積
- 85.82m²(壁芯)
- 間取り
- 2LDK
- 建物構造
- RC(鉄筋コンクリート)
- 所在階/階数
- 31階/40階建(地下2階)
- 駐車場
- 有(空有)27,000円~50,000円(非課税)
- 空き物件数/総戸数
- -/590戸
- 主要採光面
- 東
- バルコニー面積
- 16.66m²
- 修繕積立金
- (月額)25,800円
- 修繕積立基金
- -
- 管理費
- (月額)17,200円
- 土地面積
- -
- 土地権利
- 所有権
- 坪単価
- 674.1万円
- 建築条件※注1
- -
- 用途地域
- 準工業地域
- 地勢
- 建ぺい率/容積率
- -
- 国土法届出
- 不要(否)
- 引渡 注2
- 2026年02月中旬
- 取引態様
- 媒介
- 建築確認番号
- -
- 施工会社
- 株式会社錢高組東京本社
- 管理
- 管理員/日勤、管理方式/全部委託、管理組合/有、管理会社/住友不動産建物サービス株式会社
- 設備・条件
- 公営水道、都市ガス、公共下水、ガスコンロ、エアコン、室内洗濯機置場、ペット相談、インターネット有、バルコニー有、追い焚き、システムキッチン、トランクルーム、CSアンテナ、2階以上、BSアンテナ、オートロック、エレベーター、フローリング、宅配ボックス、モニタ付インターホン、温水洗浄便座、浴室乾燥機、24時間換気、浴室暖房、24時間有人管理、24時間ゴミ出し可能、制震
- 備考
- ・ご内覧日:2025年12月13日(土)
・アルコーブ面積/0.80平米(約0.24坪)、トランクルーム面積/0.89平米(約0.26坪)
・駐車場の空き状況は、2025年11月26日現在調査によるものです。
・写真撮影年月:2025年11月
その他費用等:
ネットワーク関連 770円
- 次回更新日
- ※次回更新は、 2025年12月16日 を予定しております。
- 建築条件付売地とは、3ヶ月以内に建築請負契約が成立しなかった場合、売買契約は白紙となります。
- 引渡欄に「即時」と表示の物件は、残代金の支払いが完了次第、引渡が可能となります。
電話でのお問い合わせはこちら
お電話の際は、「すみなびを見た」とお伝え頂けるとスムーズです。
0120-64-4063
(受付時間) 10:00 ~ 18:00 (定休日) 毎週火曜日・水曜日
住友林業ホームサービス株式会社 城南支店
- 所在地
- 〒108-0075東京都港区港南2丁目5番7号 港南ビル1階
- 電話番号
- 0120-64-4063
- 免許番号
- 国土交通大臣(16)第220号
- 定休日
- 毎週火曜日・水曜日
- 不動産は成約済あるいは販売中止・価格変更となる場合もあります。
不動産の販売状況は、上記店舗へお問い合わせください。
- 不動産協会会員・(一社)不動産流通経営協会会員・(公社)首都圏不動産公正取引協議会加盟






















