収益・事業用
2025/12/08 更新
茨木市下穂積3丁目 Avanti下穂積
- 価格
- 15,800万円 (税込)
- 所在地
- 大阪府茨木市下穂積3丁目
- 交通
- 東海道線・茨木駅 徒歩11分
- 物件コード1:SMB37843
- 物件コード2:CM00621693
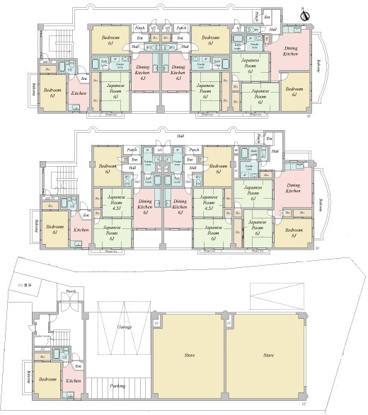
■投資用物件!■北東角地に立地する鉄筋コンクリート造3階建て一棟マンション!
- 物件詳細
- 地図・周辺施設
- ローンシミュレーション
注目
■茨木市下穂積!■北東角地に立地する鉄骨造3階建て一棟マンション!
■鉄筋コンクリート造3階建て一棟アパート!
1階 店舗2戸 52平米~59.2平米 住戸1戸 21平米
2階 住戸4戸 21平米~63平米
3階 住戸4戸 21平米~62.74平米
・月額賃料:859,445円
・年間想定収入:10,313,340円
・表面利回り:6.52%
■東と北に面する角地!
■JR京都線「茨木駅」徒歩11分!
■大規模修繕工事実施中(2025年9月~12月まで)
~工事内容~
外部塗装・防水工事・シーリング工事等
※表面利回りとは、年間想定賃料の総額の該当不動産のご購入額に対する割合で表示します。
不動産にかかわる諸費用や固定資産税等は計算に含まれません。
年間利回りについては現行の賃料を基に算出しておりますので、将来の利回りを保証するものではありません。予めご了承ください。
物件概要
- 価格
- 15,800万円 (税込) ローンシミュレーション
- 物件種別
- 売買 アパート(一棟)
- 建物名称
- 茨木市下穂積3丁目 Avanti下穂積
- 所在地
- 大阪府茨木市下穂積3丁目
- 交通
- 東海道線・茨木駅 徒歩11分
大阪モノレール・宇野辺駅 徒歩8分
- 築年月
- 1986年12月
- 現況
- 賃貸中
- 建物面積
- 611.57m²
- 間取り
- 3DK
- 専有面積(最小)
- 21m²
- 専有面積(最大)
- 63m²
- 建物構造
- RC(鉄筋コンクリート)
- 所在階/階数
- 3階建
- 駐車場
- 有
- 空き物件数/総戸数
- -/11戸
- 接道状況
- 一方(東 5.8m 公道 間口12.3m)(北 4m 公道 間口30.7m)
- 土地面積
- 419.21m²(公簿)
- 土地権利
- 所有権
- セットバック
- 無
- 私道負担
- 面積28.34m²
- 都市計画
- 市街化区域
- 地目
- 宅地
- 用途地域
- 第二種住居地域
- 地勢
- 建ぺい率/容積率
- 60% / 200%
- 国土法届出
- 不要(否)
- 引渡 注1
- 相談
- 取引態様
- 媒介
- 設備・条件
- 公営水道、都市ガス、公共下水、室内洗濯機置場、バルコニー有、駐輪場、バイク置き場、駐車場有
- 備考
- ■鉄筋コンクリート造3階建て一棟アパート!
1階 店舗2戸 52平米~59.2平米 住戸1戸 21平米
2階 住戸4戸 21平米~63平米
3階 住戸4戸 21平米~62.74平米
・月額賃料:859,445円
・年間想定収入:10,313,340円
・表面利回り:6.52%
■東と北に面する角地!
■JR京都線「茨木駅」徒歩11分!
■大規模修繕工事実施中(2025年9月~12月まで)
~工事内容~
外部塗装・防水工事・シーリング工事等
- 次回更新日
- ※次回更新は、 2025年12月15日 を予定しております。
- 引渡欄に「即時」と表示の物件は、残代金の支払いが完了次第、引渡が可能となります。
電話でのお問い合わせはこちら
お電話の際は、「すみなびを見た」とお伝え頂けるとスムーズです。
0120-14-4063
(受付時間) 10:00 ~ 18:00 (定休日) 毎週火曜日・水曜日
住友林業ホームサービス株式会社 北摂支店
- 所在地
- 〒564-0052大阪府吹田市広芝町9-17 M’s COMFORT ESAKA (101・201)
- 電話番号
- 0120-14-4063
- 免許番号
- 国土交通大臣(16)第220号
- 定休日
- 毎週火曜日・水曜日
- 不動産は成約済あるいは販売中止・価格変更となる場合もあります。
不動産の販売状況は、上記店舗へお問い合わせください。
- 不動産協会会員・(一社)不動産流通経営協会会員・(公社)首都圏不動産公正取引協議会加盟




