一戸建て
2025/12/15 更新
日進市岩崎台2丁目中古戸建
- 価格
- 4,980万円 (非課税)
- 所在地
- 愛知県日進市岩崎台2丁目
- 交通
- 東山線・星ヶ丘駅 /バス17分 岩崎台東下車 徒歩6分
- 物件コード1:SMB32659
- 物件コード2:BH00612728
■令和3年9月築のオール電化住宅 ■4LDK+WIC+SIC+下屋収納
- 物件詳細
- 地図・周辺施設
- ローンシミュレーション
注目
■駐車場並列3台可(車種による) ■オール電化住宅
■令和3年9月築
■全居室フローリング
■太陽光発電システム搭載(出力約6.61Kw)
■建物あんしん保証対象物件
お問い合わせお待ちしています。
物件概要
- 価格
- 4,980万円 (非課税) ローンシミュレーション
- 物件種別
- 売買 中古戸建
- 建物名称
- 日進市岩崎台2丁目中古戸建
- 所在地
- 愛知県日進市岩崎台2丁目
- 交通
- 東山線・星ヶ丘駅 /バス17分 岩崎台東下車 徒歩6分
- 築年月
- 2021年09月
- 現況
- 空家
- 建物面積
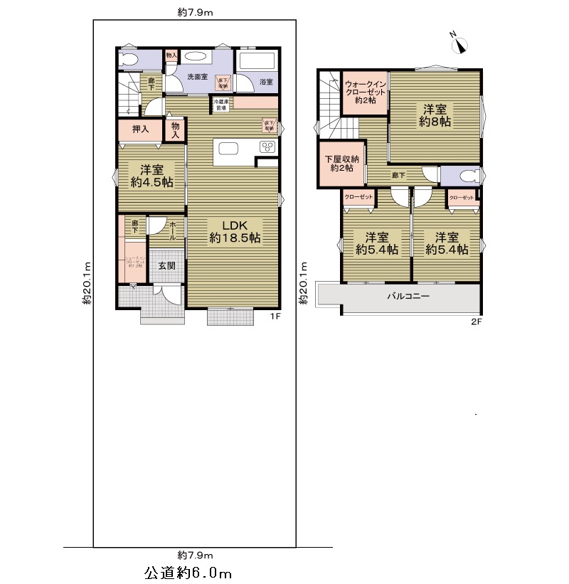
- 106.81m²
- 間取り
- 4LDK
- 建物構造
- 木造
- 階数
- 2階建
- 駐車場
- 有
- 空き物件数/総戸数
- -
- 接道状況
- 一方(南西 6m 公道 間口7.9m)
- 土地面積
- 160.62m²(公簿)
- 土地権利
- 所有権
- セットバック
- 無
- 私道負担
- 無
- 都市計画
- 市街化区域
- 地目
- 宅地
- 用途地域
- 第二種低層住居専用地域
- 地勢
- 建ぺい率/容積率
- 60% / 100%
- 国土法届出
- 不要(否)
- 引渡 注1
- 相談
- 取引態様
- 媒介
- 設備・条件
- IHコンロ、室内洗濯機置場、バルコニー有、追い焚き、システムキッチン、W.INクローゼット、フローリング、モニタ付インターホン、温水洗浄便座、オール電化、カウンターキッチン、浴室乾燥機、食器洗浄乾燥機、ペアガラス、駐車場2台有
- 備考
- ■全居室フローリング
■駐車場並列3台可(車種による)
■太陽光発電システム搭載(出力約6.61Kw)
■建物あんしん保証対象物件
物件のお引渡し後、構造耐力上主要な部分、雨水の浸入を防止する部分、
給排水管路の補修費用は最大1000万円(期間1年)まで、シロアリの
被害の補修費用は最大100万円(期間1年)まで保証されます。
但し、欠陥の事由によっては、補修費用を負担できない場合があります。
■地下鉄東山線「星ヶ丘」駅より名鉄バス約17分乗車、「岩崎台東」停徒歩約4分
法令上の制限:建築基準法22条区域、宅地造成及び特定盛土等規制法
- 次回更新日
- ※次回更新は、 2026年01月05日 を予定しております。
- 引渡欄に「即時」と表示の物件は、残代金の支払いが完了次第、引渡が可能となります。
電話でのお問い合わせはこちら
お電話の際は、「すみなびを見た」とお伝え頂けるとスムーズです。
0120-70-4063
(受付時間) 10:00 ~ 18:00 (定休日) 毎週火曜日・水曜日
住友林業ホームサービス株式会社 平針店
- 所在地
- 〒468-0011愛知県名古屋市天白区平針3丁目708番地
- 電話番号
- 0120-70-4063
- 免許番号
- 国土交通大臣(16)第220号
- 定休日
- 毎週火曜日・水曜日
- 不動産は成約済あるいは販売中止・価格変更となる場合もあります。
不動産の販売状況は、上記店舗へお問い合わせください。
- 不動産協会会員・(一社)不動産流通経営協会会員・(公社)首都圏不動産公正取引協議会加盟























