一戸建て
2025/12/15 更新
清須市西枇杷島町花咲中古戸建
- SumStock
- 住友林業施工の家
- 価格
- 4,900万円 (非課税)
- 所在地
- 愛知県清須市西枇杷島町花咲
- 交通
- 犬山線・下小田井駅 東口 徒歩5分
- 物件コード1:SMB36069
- 物件コード2:BH00618509
■住友林業の家 ■長期優良住宅 ■省令準耐火性能 ■LDK20帖以上
- 物件詳細
- 地図・周辺施設
- ローンシミュレーション
この物件はスムストックとして販売しています
- 住宅履歴データベースを保有している物件です。
- 新耐震基準レベルの耐震性を保持している物件です。
- 50年以上のメンテナンスプログラムを保有している物件です。
物件概要
- 価格
- 4,900万円 (非課税) ローンシミュレーション
- 物件種別
- 売買 中古戸建
- 建物名称
- 清須市西枇杷島町花咲中古戸建
- 所在地
- 愛知県清須市西枇杷島町花咲
- 交通
- 犬山線・下小田井駅 東口 徒歩5分
東海道線・枇杷島駅 東口 徒歩10分
城北線・枇杷島駅 東口 徒歩10分
- 築年月
- 2016年03月
- 現況
- 空家
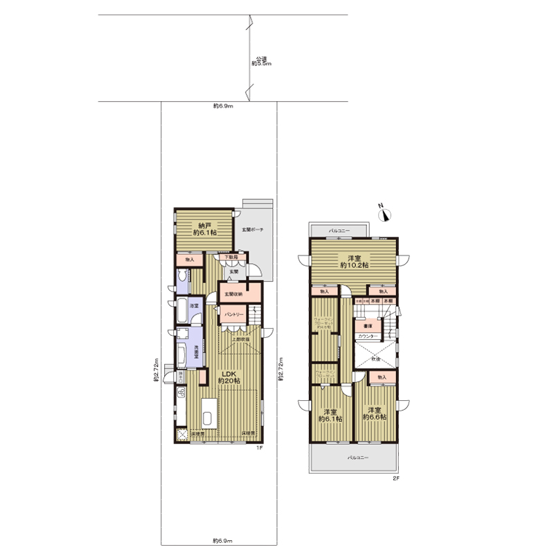
- 建物面積
- 137.46m²
- 間取り
- 3LDK+S(納戸)
- 建物構造
- 木造
- 階数
- 2階建
- 駐車場
- 有
- 空き物件数/総戸数
- -
- 接道状況
- 一方(北 5.5m 公道 間口6.9m)
- 土地面積
- 190.44m²(公簿)
- 土地権利
- 所有権
- セットバック
- 無
- 私道負担
- 無
- 都市計画
- 市街化区域
- 地目
- 宅地
- 用途地域
- 第一種住居地域
- 地勢
- 建ぺい率/容積率
- 60% / 200%
- 国土法届出
- 不要(否)
- 引渡 注1
- 相談
- 取引態様
- 媒介
- 建築確認番号
- -
- 施工会社
- 住友林業株式会社
- 備考
- ※本物件上に上下水道管、ガス管等を引込み、又は撤去される場合は、別途費用が発生いたします。
※通学路の指定につきましては各学校・教育委員会へご確認ください。
住友林業施工の一戸建て
法令上の制限:建築基準法22条区域、宅地造成等規制法
- 次回更新日
- ※次回更新は、 2026年01月05日 を予定しております。
| 定期点検(年) |
|
||||||||||||||||||||||
|---|---|---|---|---|---|---|---|---|---|---|---|---|---|---|---|---|---|---|---|---|---|---|---|
| 定期点検特記事項 | |||||||||||||||||||||||
| メンテナンス・リフォーム |
- 引渡欄に「即時」と表示の物件は、残代金の支払いが完了次第、引渡が可能となります。
電話でのお問い合わせはこちら
お電話の際は、「すみなびを見た」とお伝え頂けるとスムーズです。
0120-78-4063
(受付時間) 10:00 ~ 18:00 (定休日) 毎週火曜日・水曜日
住友林業ホームサービス株式会社 名古屋支店
- 所在地
- 〒460-0008愛知県名古屋市中区栄2丁目3-1 名古屋広小路ビルヂング1階
- 電話番号
- 0120-78-4063
- 免許番号
- 国土交通大臣(16)第220号
- 定休日
- 毎週火曜日・水曜日
- 不動産は成約済あるいは販売中止・価格変更となる場合もあります。
不動産の販売状況は、上記店舗へお問い合わせください。
- 不動産協会会員・(一社)不動産流通経営協会会員・(公社)首都圏不動産公正取引協議会加盟























