一戸建て
2025/12/12 更新
御影山手2丁目 戸建
- 住友林業施工の家
- 価格
- 8,980万円 (非課税)
- 所在地
- 兵庫県神戸市東灘区御影山手2丁目
- 交通
- 阪急神戸線・御影駅 徒歩10分
- 物件コード1:SMB34591
- 物件コード2:BH00615993
■2011年12月建築■住友林業株式会社施工■阪急御影駅徒歩10分
- 物件詳細
- 地図・周辺施設
- ローンシミュレーション
注目
■2011年12月建築■住友林業株式会社施工■阪急御影駅徒歩10分
■土地約50坪
■電動シャッター付堀込車庫(駐車スペース2台分)
■キッチン、ダイニング、リビングに床暖房あり
■浴室は1618システムバス
■食洗機付システムキッチン、造付カップボード収納あり
~LIFE INFORMATION~
■御影北小学校 約510m■御影中学校 約1500m
■コープミニ高羽 約510m■六甲病院 約450m
■神戸御影山手郵便局 約510m■天神山公園 約50m
物件概要
- 価格
- 8,980万円 (非課税) ローンシミュレーション
- 物件種別
- 売買 中古戸建
- 建物名称
- 御影山手2丁目 戸建
- 所在地
- 兵庫県神戸市東灘区御影山手2丁目
- 交通
- 阪急神戸線・御影駅 徒歩10分
阪急神戸線・六甲駅 出口2 徒歩15分
東海道線・六甲道駅 北出口 徒歩20分
- 築年月
- 2011年12月
- 現況
- 空家
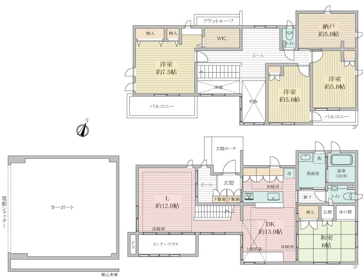
- 建物面積
- 136.62m²
- 間取り
- 4LDK+S(納戸)
- 建物構造
- 木造
- 階数
- 2階建
- 接道状況
- 一方(南西 4m 公道 間口9.1m)
- 土地面積
- 165.79m²(公簿)
- 土地権利
- 所有権
- セットバック
- 有0.23m²
- 私道負担
- 無
- 都市計画
- 市街化区域
- 地目
- 宅地
- 用途地域
- 第一種低層住居専用地域
- 地勢
- 建ぺい率/容積率
- 50% / 100%
- 国土法届出
- 不要(否)
- 引渡 注1
- 相談
- 取引態様
- 媒介
- 建築確認番号
- -
- 施工会社
- 住友林業株式会社
- 設備・条件
- 公営水道、都市ガス、公共下水、バルコニー有、システムキッチン、W.INクローゼット、2階以上、床暖房、モニタ付インターホン、温水洗浄便座、カウンターキッチン、浴室乾燥機、食器洗浄乾燥機、駐車場有、浴室暖房
- 備考
- 住友林業施工の一戸建て
法令上の制限:宅地造成等工事規制区域、建築基準法22条区域、御影山手まちづくり協定
- 次回更新日
- ※次回更新は、 2026年01月02日 を予定しております。
- 引渡欄に「即時」と表示の物件は、残代金の支払いが完了次第、引渡が可能となります。
電話でのお問い合わせはこちら
お電話の際は、「すみなびを見た」とお伝え頂けるとスムーズです。
0120-18-4063
(受付時間) 10:00 ~ 18:00 (定休日) 毎週火曜日・水曜日
住友林業ホームサービス株式会社 岡本店
- 所在地
- 〒658-0072兵庫県神戸市東灘区岡本1丁目5番7号
- 電話番号
- 0120-18-4063
- 免許番号
- 国土交通大臣(16)第220号
- 定休日
- 毎週火曜日・水曜日
- 不動産は成約済あるいは販売中止・価格変更となる場合もあります。
不動産の販売状況は、上記店舗へお問い合わせください。
- 不動産協会会員・(一社)不動産流通経営協会会員・(公社)首都圏不動産公正取引協議会加盟























