一戸建て
2025/12/09 更新
姫路市西新在家2丁目中古戸建
- SumStock
- 住友林業施工の家
- 価格
- 10,200万円 (非課税)
- 所在地
- 兵庫県姫路市西新在家2丁目
- 交通
- 山陽線・姫路駅 姫路城口(北口) 徒歩39分
- 物件コード1:SMB37443
- 物件コード2:BH00621367
住友林業施工の家/2017年3月築/一種低層街区/土地約99坪
- 物件詳細
- 地図・周辺施設
- ローンシミュレーション
注目
住友林業施工の家/2017年3月築/一種低層街区/土地約99坪
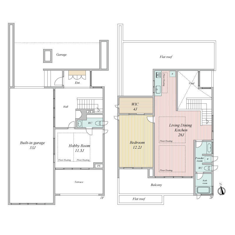
浴室から姫路城を望む/エントランス板張天井/モノトーンを基調とした玄関(吹抜)/車庫4台+ビルドインガレージ/ゲストルームは床タイル仕上げ/LDK天井レッドシダー・床マホガニー仕上/LDK約28帖/床暖房/クローゼット/庭テラス/バルコニー/庭倉庫/省令準耐火/遮音70仕様/エコキュート/屋根天然砕石仕上/外壁シーサンドコート仕上/24時間換気/60年維持保全計画書/設計・建設性能評価書/5年目定期点検済/兵庫県立大徒歩8分/ヤマダストアー徒歩8分/ローソン徒歩6分/ザグザグ徒歩5分/城西小徒歩8分 ※スムストック認定住宅(建物6380万円+土地3820万円
この物件はスムストックとして販売しています
- 住宅履歴データベースを保有している物件です。
- 新耐震基準レベルの耐震性を保持している物件です。
- 50年以上のメンテナンスプログラムを保有している物件です。
物件概要
- 価格
- 10,200万円 (非課税) ローンシミュレーション
- 物件種別
- 売買 中古戸建
- 建物名称
- 姫路市西新在家2丁目中古戸建
- 所在地
- 兵庫県姫路市西新在家2丁目
- 交通
- 山陽線・姫路駅 姫路城口(北口) 徒歩39分
山陽新幹線・姫路駅 北口/バス15分 新在家下車 徒歩3分
- 築年月
- 2017年03月
- 現況
- 空家
- 建物面積
- 177.54m²
- 間取り
- 2LDK+S(納戸)
- 建物構造
- 木造
- 階数
- 2階建
- 駐車場
- 有
- 空き物件数/総戸数
- -
- 接道状況
- 一方(北 6m 公道 間口12.9m)
- 土地面積
- 329.74m²(公簿)
- 土地権利
- 所有権
- セットバック
- 無
- 私道負担
- 無
- 都市計画
- 市街化区域
- 地目
- 宅地
- 用途地域
- 第一種低層住居専用地域
- 地勢
- 建ぺい率/容積率
- 50% / 100%
- 国土法届出
- 不要(否)
- 引渡 注1
- 相談
- 取引態様
- 媒介
- 建築確認番号
- -
- 施工会社
- 住友林業
- 備考
- 【住友林業施工】スムストック認定のお住まい 建物価格6,380万円/土地価格3,820万円
住友林業施工の一戸建て
法令上の制限:法22条 宅造規制 高さ10m 外壁後退1m
- 次回更新日
- ※次回更新は、 2025年12月16日 を予定しております。
| 定期点検(年) |
|
||||||||||||||||||||||
|---|---|---|---|---|---|---|---|---|---|---|---|---|---|---|---|---|---|---|---|---|---|---|---|
| 定期点検特記事項 | |||||||||||||||||||||||
| メンテナンス・リフォーム |
- 引渡欄に「即時」と表示の物件は、残代金の支払いが完了次第、引渡が可能となります。
電話でのお問い合わせはこちら
お電話の際は、「すみなびを見た」とお伝え頂けるとスムーズです。
0120-554-700
(受付時間) 10:00 ~ 18:00 (定休日) 毎週火曜日・水曜日
住友林業ホームサービス株式会社 売買仲介ストック営業部 関西
- 所在地
- 〒663-8204兵庫県西宮市高松町5-39 なでしこビル3階
- 電話番号
- 0120-554-700
- 免許番号
- 国土交通大臣(16)第220号
- 定休日
- 毎週火曜日・水曜日
- 不動産は成約済あるいは販売中止・価格変更となる場合もあります。
不動産の販売状況は、上記店舗へお問い合わせください。
担当者情報
- 不動産協会会員・(一社)不動産流通経営協会会員・(公社)首都圏不動産公正取引協議会加盟



















