一戸建て
2025/12/15 更新
武蔵村山市大南3丁目中古戸建
- 価格
- 3,480万円 (非課税)
- 所在地
- 東京都武蔵村山市大南3丁目
- 交通
- 多摩モノレール・桜街道駅 徒歩22分
- 物件コード1:SMB34712
- 物件コード2:BH00616090
- 物件詳細
- ローンシミュレーション
注目
住友林業システム住宅株式会社施工の4LDK、南面に庭(約20坪超)
こちらの物件は、『住友林業ホームサービス 立川店』の専任媒介物件です。
弊社窓口となりますので、ご相談・ご質問等は、担当:岡部まで、お気軽にお問い合わせ下さい。
■住友林業システム住宅株式会社旧施工
■4LDK
■玄関ドアにシステムキー採用
■南向き
■南面に庭
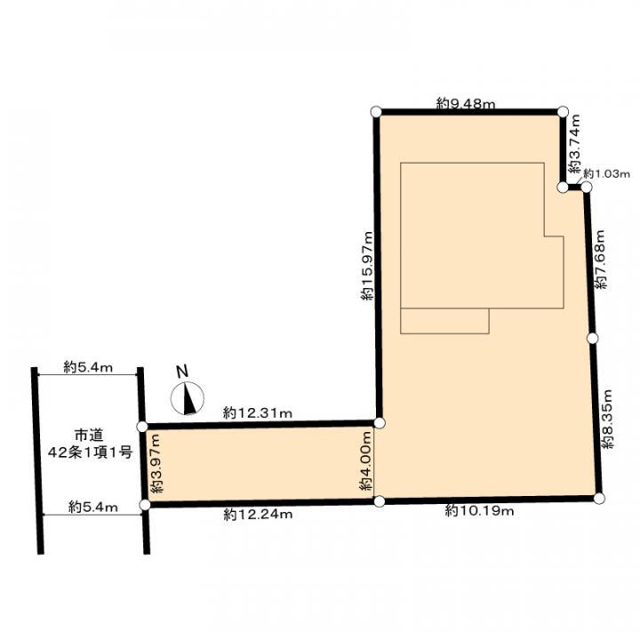
■接道間口:約3.9m
■敷地面積:約72.9坪
物件概要
- 価格
- 3,480万円 (非課税) ローンシミュレーション
- 物件種別
- 売買 中古戸建
- 建物名称
- 武蔵村山市大南3丁目中古戸建
- 所在地
- 東京都武蔵村山市大南3丁目
- 交通
- 多摩モノレール・桜街道駅 徒歩22分
西武拝島線・玉川上水駅 徒歩24分
- 築年月
- 2004年04月
- 現況
- 空家
- 建物面積
- 120.51m²
- 間取り
- 4LDK
- 建物構造
- 木造
- 階数
- 2階建
- 駐車場
- 有
- 空き物件数/総戸数
- -
- 接道状況
- 一方(西 5.4m 公道 間口3.9m)
- 土地面積
- 241.01m²(公簿)
- 土地権利
- 所有権
- セットバック
- 無
- 私道負担
- 無
- 都市計画
- 市街化区域
- 地目
- 宅地
- 用途地域
- 第一種低層住居専用地域
- 地勢
- 建ぺい率/容積率
- 40% / 80%
- 国土法届出
- 不要(否)
- 引渡 注1
- 相談
- 取引態様
- 媒介
- 建築確認番号
- -
- 施工会社
- 住友林業システム住宅株式会社
- 設備・条件
- 公営水道、プロパンガス、公共下水、専用風呂、専用トイレ、ガスコンロ、エアコン、室内洗濯機置場、バルコニー有、システムキッチン、温水洗浄便座、カウンターキッチン、駐車場有
- 備考
- 路地状部分 約 50平米を含む
- 次回更新日
- ※次回更新は、 2026年01月05日 を予定しております。
- 引渡欄に「即時」と表示の物件は、残代金の支払いが完了次第、引渡が可能となります。
電話でのお問い合わせはこちら
お電話の際は、「すみなびを見た」とお伝え頂けるとスムーズです。
0120-01-4063
(受付時間) 10:00 ~ 18:00 (定休日) 毎週火曜日・水曜日
住友林業ホームサービス株式会社 立川店
- 所在地
- 〒190-0012東京都立川市曙町2丁目12-18
- 電話番号
- 0120-01-4063
- 免許番号
- 国土交通大臣(16)第220号
- 定休日
- 毎週火曜日・水曜日
- 不動産は成約済あるいは販売中止・価格変更となる場合もあります。
不動産の販売状況は、上記店舗へお問い合わせください。
- 不動産協会会員・(一社)不動産流通経営協会会員・(公社)首都圏不動産公正取引協議会加盟























