マンション
2025/12/13 更新
ユーハウス第2徳川
- 価格
- 1,350万円
- 所在地
- 愛知県名古屋市東区徳川1丁目
- 交通
- 桜通線・高岳駅 徒歩14分
- 物件コード1:DKM13237
- 物件コード2:BA00618722
- 物件詳細
- ローンシミュレーション
物件概要
- 価格
- 1,350万円 ローンシミュレーション
- 物件種別
- 売買 中古マンション
- 建物名称
- ユーハウス第2徳川
- 所在地
- 愛知県名古屋市東区徳川1丁目
- 交通
- 桜通線・高岳駅 徒歩14分
桜通線・車道駅 徒歩17分
- 築年月
- 1999年05月
- 現況
- 空家
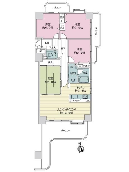
- 専有面積
- 88.8m²(壁芯)
- 間取り
- 4LDK
- 建物構造
- SRC(鉄骨鉄筋コンクリート)
- 所在階/階数
- 12階/14階建
- 駐車場
- -
- 空き物件数/総戸数
- -/41戸
- 主要採光面
- 南
- バルコニー面積
- 25.3m²
- 修繕積立金
- (月額)11,200円
- 修繕積立基金
- -
- 管理費
- (月額)6,200円
- 土地面積
- -
- 土地権利
- 定期地上
- 借地料
- 24,820円/月
- 借地期間
- 2049年9月まで
- 坪単価
- 50.3万円
- 建築条件※注1
- -
- 用途地域
- 商業地域
第二種住居地域
- 地勢
- 建ぺい率/容積率
- -
- 国土法届出
- 不要(否)
- 引渡 注2
- 相談
- 取引態様
- 媒介
- 管理
- 管理員/巡回、管理方式/全部委託
- 備考
- 巡回管理 掲載中の家具・什器は販売価格に含まれません。
その他費用等(月額):
CATV使用料、解体費積立金、借地料 29470円
- 次回更新日
- ※次回更新は、 2025年12月20日 を予定しております。
- 建築条件付売地とは、3ヶ月以内に建築請負契約が成立しなかった場合、売買契約は白紙となります。
- 引渡欄に「即時」と表示の物件は、残代金の支払いが完了次第、引渡が可能となります。
電話でのお問い合わせはこちら
お電話の際は、「すみなびを見た」とお伝え頂けるとスムーズです。
0120-55-4063
(受付時間) 10:00 ~ 18:00 (定休日) 毎週火曜日・水曜日
住友林業ホームサービス株式会社 大曽根店
- 所在地
- 〒462-0810愛知県名古屋市北区山田1丁目1番40号寿ゞやマンション大曽根1階
- 電話番号
- 0120-55-4063
- 免許番号
- 国土交通大臣(16)第220号
- 定休日
- 毎週火曜日・水曜日
- 不動産は成約済あるいは販売中止・価格変更となる場合もあります。
不動産の販売状況は、上記店舗へお問い合わせください。
- 不動産協会会員・(一社)不動産流通経営協会会員・(公社)首都圏不動産公正取引協議会加盟






