マンション
2025/12/13 更新
グランアッシュ我孫子前
- 価格
- 4,780万円 (非課税)
- 所在地
- 大阪府大阪市住吉区遠里小野1丁目
- 交通
- 高野線・我孫子前駅 東出入り口 徒歩4分
- 物件コード1:SMB35080
- 物件コード2:BA00616812
令和5年1月築・15階建13階部分・南西角部屋・ペット飼育可(規約有)
- 物件詳細
- 地図・周辺施設
- ローンシミュレーション
物件概要
- 価格
- 4,780万円 (非課税) ローンシミュレーション
- 物件種別
- 売買 中古マンション
- 建物名称
- グランアッシュ我孫子前
- 所在地
- 大阪府大阪市住吉区遠里小野1丁目
- 交通
- 高野線・我孫子前駅 東出入り口 徒歩4分
阪和線・我孫子町駅 西出口 徒歩12分
阪堺線・我孫子道駅 出入口2 徒歩13分
- 築年月
- 2023年01月
- 現況
- 居住中
- 専有面積
- 70.43m²(壁芯)
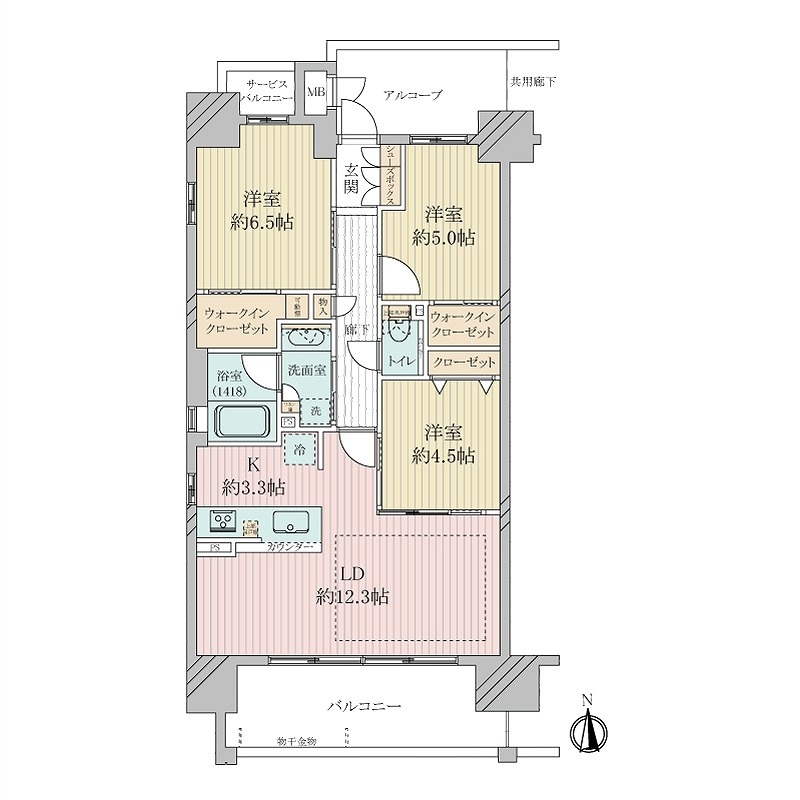
- 間取り
- 3LDK
- 間取り詳細
- 洋室6.5畳×1、洋室5畳×1、洋室4.5畳×1、LDK15.5畳×1
- 建物構造
- RC(鉄筋コンクリート)
- 所在階/階数
- 13階/15階建
- 駐車場
- -
- 空き物件数/総戸数
- -/44戸
- 主要採光面
- 南
- バルコニー面積
- 10.55m²
- 修繕積立金
- (月額)4,930円
- 修繕積立基金
- -
- 管理費
- (月額)9,920円
- 土地面積
- -
- 土地権利
- 所有権
- 坪単価
- 224.4万円
- 建築条件※注1
- -
- 用途地域
- 第二種中高層住居専用地域
- 地勢
- 建ぺい率/容積率
- -
- 国土法届出
- 不要(否)
- 引渡 注2
- 相談
- 取引態様
- 媒介
- 建築確認番号
- -
- 施工会社
- スナダ建設株式会社
- 管理
- 管理員/日勤、管理方式/全部委託、管理組合/有、管理会社/株式会社長谷工コミュニティ
- 備考
- 3線利用可(高野線「我孫子前」駅歩4分・阪和線「我孫子町」駅歩12分・御堂筋線「あびこ」駅歩18分)・遠里小野小学校約470m(徒歩6分)・大和川中学校約310m(徒歩4分)・スーパーナショナルおりおの店約230m(徒歩3分)「設備あんしん保証対象物件」 詳しい内容は営業担当者にお聞きください。なお、下記URLでも確認いただけます。(URL: http://www.suminavi.com/anshin-hosho/mansion.html)
- 次回更新日
- ※次回更新は、 2026年01月03日 を予定しております。
- 建築条件付売地とは、3ヶ月以内に建築請負契約が成立しなかった場合、売買契約は白紙となります。
- 引渡欄に「即時」と表示の物件は、残代金の支払いが完了次第、引渡が可能となります。
電話でのお問い合わせはこちら
お電話の際は、「すみなびを見た」とお伝え頂けるとスムーズです。
0120-06-7211
(受付時間) 10:00 ~ 18:00 (定休日) 毎週火曜日・水曜日
住友林業ホームサービス株式会社 西田辺店
- 所在地
- 〒545-0021大阪府大阪市阿倍野区阪南町5丁目4番28号
- 電話番号
- 0120-06-7211
- 免許番号
- 国土交通大臣(16)第220号
- 定休日
- 毎週火曜日・水曜日
- 不動産は成約済あるいは販売中止・価格変更となる場合もあります。
不動産の販売状況は、上記店舗へお問い合わせください。
- 不動産協会会員・(一社)不動産流通経営協会会員・(公社)首都圏不動産公正取引協議会加盟




















