マンション
2025/12/08 更新
センチュリー加古川粟津
- 価格
- 1,580万円 (非課税)
- 所在地
- 兵庫県加古川市加古川町粟津
- 交通
- 山陽線・加古川駅 南口 徒歩19分
- 物件コード1:SMB37377
- 物件コード2:BA00620965
■センチュリー加古川粟津 ■南向きバルコニー
- 物件詳細
- 地図・周辺施設
- ローンシミュレーション
注目
~ センチュリー加古川粟津 南向きのお部屋です ~
■JR山陽本線「加古川」駅 徒歩19分
■山陽電気鉄道「尾上の松」駅 徒歩22分
■2002年2月建築
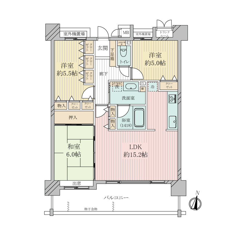
■専有面積75.01平米
■11階建ての2階部分 ■3LDK
~ リフォーム履歴 ~
・2022年5月:ユニットバス交換、ガスコンロ・レンジフード交換
・2021年10月:トイレ交換
・2016年12月:給湯器交換
~ 周辺施設 ~
・加古川市立加古川小学校 約1200m
・加古川市立加古川中学校 約803m
・加古川市立加古川幼稚園 約1200m
物件概要
- 価格
- 1,580万円 (非課税) ローンシミュレーション
- 物件種別
- 売買 中古マンション
- 建物名称
- センチュリー加古川粟津
- 所在地
- 兵庫県加古川市加古川町粟津
- 交通
- 山陽線・加古川駅 南口 徒歩19分
山電本線・尾上の松駅 徒歩22分
山電本線・浜の宮駅 徒歩31分
- 築年月
- 2002年02月
- 現況
- 居住中
- 専有面積
- 75.01m²(壁芯)
- 間取り
- 3LDK
- 建物構造
- RC(鉄筋コンクリート)
- 所在階/階数
- 2階/11階建
- 駐車場
- 有(空有)3,000円~6,000円(非課税)
- 空き物件数/総戸数
- -/138戸
- 主要採光面
- 南
- バルコニー面積
- 15.08m²
- 修繕積立金
- (月額)15,000円
- 修繕積立基金
- -
- 管理費
- (月額)7,580円
- 土地面積
- -
- 土地権利
- 所有権
- 坪単価
- 69.7万円
- 建築条件※注1
- -
- 用途地域
- 第二種中高層住居専用地域
- 地勢
- 建ぺい率/容積率
- -
- 国土法届出
- 不要(否)
- 引渡 注2
- 相談
- 取引態様
- 媒介
- 建築確認番号
- -
- 施工会社
- 前川建設株式会社
- 管理
- 管理員/日勤、管理方式/全部委託、管理組合/有、管理会社/グローバルコミュニティ株式会社
- 設備・条件
- 公営水道、都市ガス、公共下水、ガスコンロ、ペット可、バルコニー有、システムキッチン、エレベーター、フローリング、駐輪場、バイク置き場、モニタ付インターホン
- 備考
- ■JR山陽本線「加古川」駅 徒歩19分
■山陽電気鉄道「尾上の松」駅 徒歩22分
■2002年2月建築
■専有面積75.01平米
■11階建ての2階部分 ■3LDK
~ リフォーム履歴 ~
・2022年5月:ユニットバス交換、ガスコンロ・レンジフード交換
・2021年10月:トイレ交換
・2016年12月:給湯器交換
~ 周辺施設 ~
・加古川市立加古川小学校 約1200m
・加古川市立加古川中学校 約803m
・加古川市立加古川幼稚園 約1200m
法令上の制限:建築基準法第22条指定区域、宅地造成等規制法
- 次回更新日
- ※次回更新は、 2025年12月15日 を予定しております。
- 建築条件付売地とは、3ヶ月以内に建築請負契約が成立しなかった場合、売買契約は白紙となります。
- 引渡欄に「即時」と表示の物件は、残代金の支払いが完了次第、引渡が可能となります。
電話でのお問い合わせはこちら
お電話の際は、「すみなびを見た」とお伝え頂けるとスムーズです。
0120-17-4063
(受付時間) 10:00 ~ 18:00 (定休日) 毎週火曜日・水曜日
住友林業ホームサービス株式会社 西宮支店
- 所在地
- 〒663-8204兵庫県西宮市高松町5番39号 なでしこビル3階
- 電話番号
- 0120-17-4063
- 免許番号
- 国土交通大臣(16)第220号
- 定休日
- 毎週火曜日・水曜日
- 不動産は成約済あるいは販売中止・価格変更となる場合もあります。
不動産の販売状況は、上記店舗へお問い合わせください。
- 不動産協会会員・(一社)不動産流通経営協会会員・(公社)首都圏不動産公正取引協議会加盟























